| 大阪府大阪市西区川口3-10-7 | |
| 交通 | 大阪メトロ中央線/九条駅 徒歩7分 |
| 価格 | 1,730万円 | 平米単価 | 管理費等 | 5,390円 | 修繕積立金 | 5,150円 | |
| 賃料 | 67,000円 | 借地期間 | – | 地代 | – | 敷金・保証金 | 敷金-保証金- |
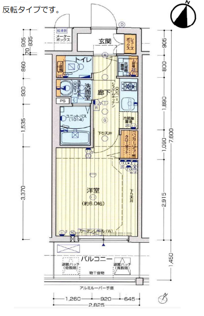
| その他費用 | -円 | 間取り | 1R | 専有面積 | 21.47㎡(壁芯) | バルコニー | 4.09㎡ |
| 土地権利 | 所有権 | 建物構造 | RC | 階建 / 階 | 地上11階 /8階 | 築年月 | 築6年(2019/1) |
| 総戸数 | 60戸 | 管理形態 | 管理会社に全部委託 | 管理人状況 | 巡回 | 設備 | |
| 現況 | 賃貸中 | 引渡し | 相談 | 取引形態 | 仲介 | 備考 |
物件品質
80点
利回り
81点
価格
81点
アクセス
83点
エリア
83点
築年数
83点
リスク回避
83点
周辺地図
- 自己資金
- 万円
- 借入金額
- 万円
- 借入期間
- 年
- 借入金利年利
- % / 年
- その他費用月額
- 円 / 月
- 物件価格
- 1730万円
- 家賃
- 67000円
- 管理費
- 5390円
- 修繕積立金
- 5150円
- その他費用
- –円
- 月の収支額
- –円
■ローン残債 ■収支累計
※収支累計は毎月の収支額を累計した数値であり、ローン残債との連動はしておりません。






大阪メトロ中央線



