| 所在地 | 大阪府大阪市浪速区塩草1-4-15 |
| 交通 | 大阪環状線/芦原駅 徒歩5分 |
| 価格 | 1,680万円 | 平米単価 | 管理費等 | 7,330円 | 修繕積立金 | 管理費込 | |
| 賃料 | 63,890円 | 借地期間 | – | 地代 | – | 敷金・保証金 | 敷金-保証金- |
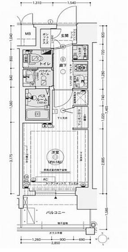
| その他費用 | -円 | 間取り | 1K | 専有面積 | 20.63㎡(壁芯) | バルコニー | -㎡ |
| 土地権利 | 所有権 | 建物構造 | RC | 階建 / 階 | 地上 15階 /7階 | 築年月 | 築7年(2018/8) |
| 総戸数 | 214戸 | 管理形態 | 管理会社に全部委託 | 管理人状況 | 巡回 | 設備 | |
| 現況 | 賃貸中 | 引渡し | 相談 | 取引形態 | 仲介 | 備考 |
物件品質
80点
利回り
80点
価格
80点
アクセス
85点
エリア
85点
築年数
78点
リスク回避
78点
周辺地図
- 自己資金
- 万円
- 借入金額
- 万円
- 借入期間
- 年
- 借入金利年利
- % / 年
- その他費用月額
- 円 / 月
- 物件価格
- 1680万円
- 家賃
- 63890円
- 管理費
- 7330円
- 修繕積立金
- –円
- その他費用
- –円
- 月の収支額
- –円
■ローン残債 ■収支累計
※収支累計は毎月の収支額を累計した数値であり、ローン残債との連動はしておりません。











