| 大阪府大阪市北区長柄東3丁目3-24 | |
| 交通 | 大阪メトロ谷町線/天神橋筋6丁目駅 徒歩16分 |
| 価格 | 1,780万円 | 平米単価 | 管理費等 | 5,800円 | 修繕積立金 | 3,000円 | |
| 賃料 | 66,660円 | 借地期間 | – | 地代 | – | 敷金・保証金 | 敷金-保証金- |
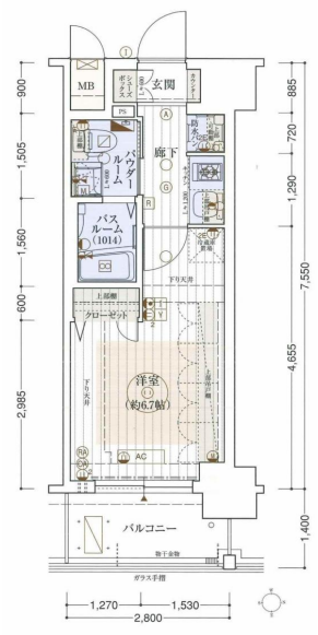
| その他費用 | -円 | 間取り | 1K | 専有面積 | 21.14㎡(壁芯) | バルコニー | -㎡ |
| 土地権利 | 所有権 | 建物構造 | RC | 階建 / 階 | 地上10階 /10階 | 築年月 | 築12年(2013/12) |
| 総戸数 | 78戸 | 管理形態 | 管理会社に全部委託 | 管理人状況 | 日勤 | 設備 | |
| 現況 | 賃貸中 | 引渡し | 相談 | 取引形態 | 仲介 | 備考 |
物件品質
80点
利回り
79点
価格
80点
アクセス
74点
エリア
74点
築年数
73点
リスク回避
73点
周辺地図
- 自己資金
- 万円
- 借入金額
- 万円
- 借入期間
- 年
- 借入金利年利
- % / 年
- その他費用月額
- 円 / 月
- 物件価格
- 1780万円
- 家賃
- 66660円
- 管理費
- 5800円
- 修繕積立金
- 3000円
- その他費用
- –円
- 月の収支額
- –円
■ローン残債 ■収支累計
※収支累計は毎月の収支額を累計した数値であり、ローン残債との連動はしておりません。











